Via Rua, Aci Catena, Catania
Vendita 55.000,00€ - Attico / Mansarda
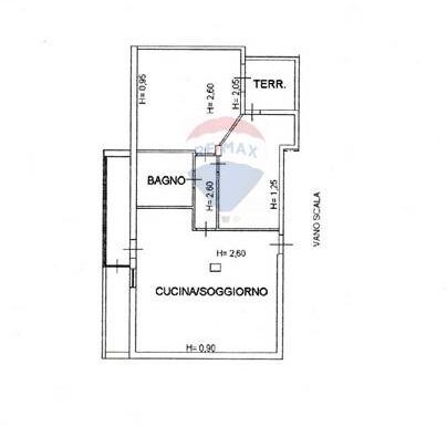
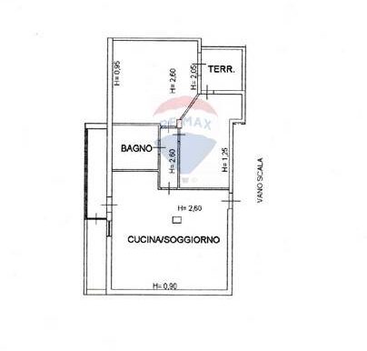
Classe energetica: G – Aci Catena, precisamente Via Rua, mansarda/attico (A/2) di 64 mq posto al secondo piano senza ascensore di una piccola palazzina. La superficie dell’immobile è sfruttata grazie ad una distribuzione interna ottimale.
L’immobile è composto da ampia zona living ben distribuita e rifinita con la realizzazione di cucina in muatura e camino a legna; da un corridoio si accede alla zona notte composta da due camere servite da un terrazzino e un ampio bagno con vasca angolare. Lavanderia esterna.
L’immobile è dotato di posto auto assegnato. Possibilità di acquistare un garage di 40 mq a 20.000,00
——————————-



















