Vendita 95.000,00€ - Terreno Residenziale
Sei alla ricerca di un’opportunità di investimento immobiliare unica e redditizia? Allora sei nel posto giusto! Remax ,azienda leader nel settore immobiliare,presenta in vendita un terreno edificabile con progetto approvato per la realizzazione di tre appartavilla con giardino, situato in una zona residenziale esclusiva e tranquilla.
Caratteristiche Principali:
– Terreno edificabile con progetto approvato per tre appartavilla con giardino
– Zona residenziale esclusiva e tranquilla
– Progetto già approvato dalle autorità competenti
– Possibilità di costruire appartavilla di lusso con giardino privato
– Investimento immobiliare redditizio e sicuro
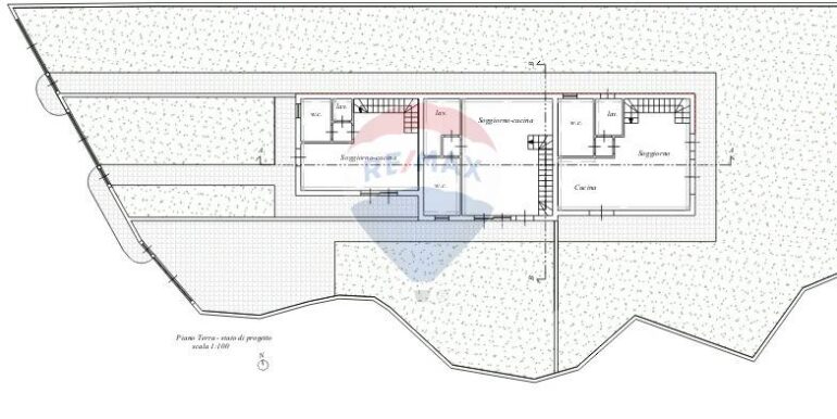
Dettagli del Progetto:
– Tre appartavilla con giardino privato, ognuno distribuito su due livelli
– Superficie totale di ogni appartamento: 105 mq circa
– Progetto di architettura moderna e design esclusivo
– Spazi interni funzionali e ben distribuiti
– Giardini privati per ogni appartavilla
– Possibilità di personalizzare gli interni e gli esterni secondo le tue esigenze
Distribuzione degli Appartamenti:
– Ogni appartavilla è distribuito su due livelli, con:
– Piano terra: ingresso, soggiorno cucina e giardino privato
– Piano primo: Due camere da letto, bagni e balcone
Vantaggi:
– Investimento immobiliare sicuro e redditizio
– Opportunità di creare un patrimonio immobiliare solido e duraturo
– Zona residenziale con facile accesso ai servizi e alle infrastrutture
-Possibilità di cambiare il progetto con altre opzioni(villa singola, bifamiliare..ecc)
Contattaci per Maggiori Informazioni:
POSSIBILITÀ di modificare il progetto e realizzare una villa singola o una villa bifamiliare bifamiliare.
Se sei interessato a questa opportunità di investimento immobiliare unica, non esitare a contattarci per maggiori informazioni. Saremo felici di fornirti tutti i dettagli necessari e di aiutarti a realizzare il tuo progetto immobiliare.
——————————-
















