Via Alcide De Gasperi, Pedara, Catania
Vendita 60.000,00€ - Terreno Residenziale
RIF: 30721759-22 1049 m²

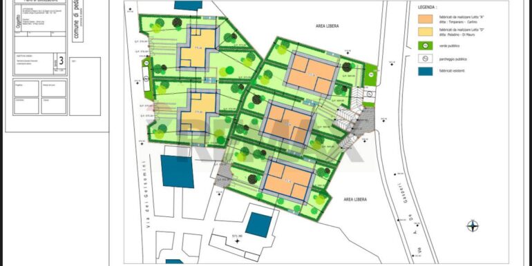
In Pedara, via Alcide De Gasperi, presentiamo terreno edificabile di 1.049 mq situato in zona centrale, residenziale e altamente richiesta, ideale per investitori e imprese di costruzione.

Progetto già approvato per la realizzazione di 1 villetta
Contesto urbano servito e di forte interesse abitativo
Perfetto per villini moderni o residenze indipendenti
Ottima esposizione e posizione strategica
Soluzione pronta a costruire: tempi ridotti e valore garantito

Un’opportunità rara per chi cerca un investimento sicuro in una delle aree più apprezzate dell’hinterland etneo, dove la richiesta di nuove abitazioni indipendenti è in costante crescita.

——————————-

Catatteristiche