via alcide de gasperi, Pedara, Catania
Vendita 160.000,00€ - Terreno Residenziale
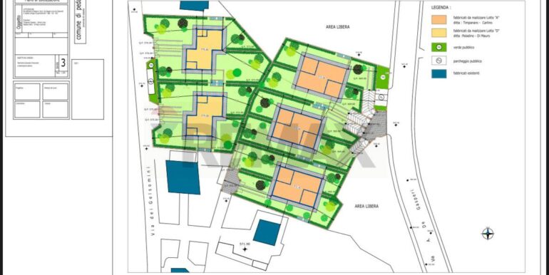
In Pedara, via Alcide De Gasperi, presentiamo terreno edificabile di 3.145 mq situato in zona centrale, residenziale e altamente richiesta, ideale per investitori e imprese di costruzione.
Progetto già approvato per la realizzazione di 3 villette
Contesto urbano servito e di forte interesse abitativo
Perfetto per villini moderni o residenze indipendenti
Ottima esposizione e posizione strategica
Soluzione pronta a costruire: tempi ridotti e valore garantito
Unopportunità rara per chi cerca un investimento sicuro in una delle aree più apprezzate dellhinterland etneo, dove la richiesta di nuove abitazioni indipendenti è in costante crescita.
——————————-







