Vendita 259.000,00€ - Casa indipendente
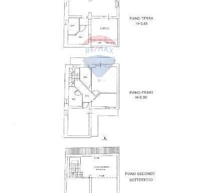
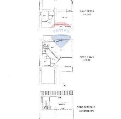
Classe energetica: G – Nel comune di Nicolosi poco distante dal centro del paese definito la “Porta dell’Etna”, celebrata da Goethe e da Verga, si presenta in vendita una soluzione indipendente . La casa si sviluppa su tre piani (piano terra, primo piano e mansarda) con una superficie totale di 152 mq..
Al suo interno si trovano 10 ampi locali, così disposti
COMPOSIZIONE
Piano Terra: ampio ingresso che si affaccia su una grande apertura dove troviamo la cucina abitabile che porta al cortile esterno, bagno, lavanderia.
Primo Piano: stanza matrimoniale con cabina armadio, seconda stanza, stanzetta e bagno.
Mansarda con terrazzo: dove passare momenti di relax e dalla quale potrete godere di un panorama mozzafiato.
SPECIFICHE TECNICHE
La casa ristrutturata nel 2015 è in buono stato di manutenzione con interni curati e ben tenuti ,offrendo così la possibilità di trasferirsi immediatamente senza dover affrontare ulteriori spese. Riscaldamento autonomo a metano, infissi con vetro camera.
Tra le caratteristiche più apprezzabili di questa casa indipendente ci sono sicuramente il cortile e il terrazzo ideali per godere di momenti di relax all’aria aperta o per organizzare cene e pranzi all’aperto durante la bella stagione.
Questa casa indipendente è l’opportunità ideale per chi cerca uno spazio abitativo grande e confortevole, in una zona tranquilla ma vicina ai servizi, e dotato di tutte le comodità necessarie per una vita serena e funzionale.
Ottima anche per chi decide di investire e creare una struttura ricettiva alle falde dell’ Etna.
——————————-














