Vendita 79.000,00€ - Appartamento
Classe energetica: F – SIRACUSA QUADRIVANI + SERVIZI SENZA BARRIERE ARCHITETTONICHE CON ASCENSORE NUOVO
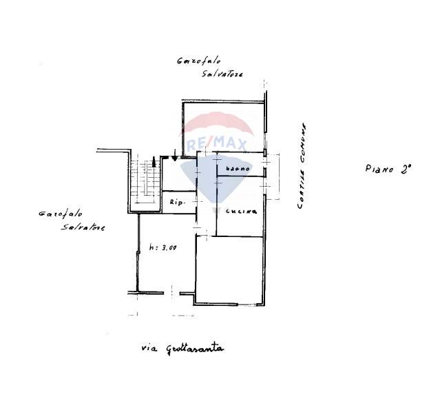
VIA GROTTA SANTA 299
Novita sul mercato: Appartamento ubicato al secondo piano con ascensore di ultima generazione, in palazzina con facciate in ottime condizioni.
L’immobile, da personalizzare, si estende su 123 mq, è avvolto di luce in ogni sua stanza, è composto da
-Ingresso su disimpegno
– Salone con ampio balcone con affaccio su Via Grottasanta
– Cucina super abitabile
– Bagno patronale –
– 2 Camere da letto
– Ripostiglio.
Possibilità di acquistare, a parte, un garage di 26 mq a livello strada
Spese condominiali 30 mensili
Le camere si affacciano su spaziosi balconi con doppia esposizione.
La casa si trova in una zona residenziale riservata e tranquilla a pochi passi dalla Pista ciclabile dove poter passeggiare sul lungomare in mezzo al verde.
La zona è servita da diverse scuole, chiese, supermercati, posta e servizi di ogni genere. A breve aprirà un supermercato Lidl
C.E./G Ottimo investimento
——————————-



















