60.000,00€
Classe energetica: G – Si presenta in vendita un luminoso appartamento nella moderna zona di Scala Greca a Siracusa, all’interno di uno stabile con posto auto condominiale assegnato.
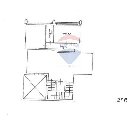
L’appartamento, recentemente ristrutturato si presenta in buone condizioni, e ha una metratura totale di 47 metri quadrati, si trova al secondo piano di uno stabile di tre piani, di ed è così composto: ingresso su zona living, con angolo cottura, zona pranzo e salottino, una comoda camera da letto matrimoniale, un piccolo disimpegno che separa gli ambienti dal bagno con box doccia.
Grazie alla sua posizione fuori dal centro storico, in un quartiere con tutti i servizi essenziali a portata di mano, come supermercati, scuole, palestre, bar, distributori di benzina, farmacie e anche un piccolo mercato rionale, risulta essere ben collegato, e a pochi minuti dallo sbocco autostradale, il che lo rende logisticamente perfetto sia per gli spostamenti in città che fuori città.
L’immobile è dotato di ogni comfort, e viene venduto completamente arredato e completo di elettrodomestici. Inoltre rappresenta un ottima occasione dato che è già messo a reddito con regolare contratto di locazione.
Una proposta imperdibile sia come investimento, che come soluzione abitativa comoda e funzionale ad un prezzo vantaggioso.
——————————-











