Vendita 160.000,00€ - Appartamento
Classe energetica: G – L’ appartamento in vendita si trova nella zona di Piazza Adda di Siracusa, una delle più ricercate e tranquille della città.
Attualmente è libero al rogito e non presenta alcun vincolo di proprietà.
Si trova in un condominio ben tenuto e dotato di ascensore, con spese condominiali contenute, pari a soli 52 euro al mese.
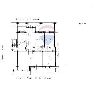
L’immobile è ampio e luminoso, con una superficie totale di 161 metri quadrati e una superficie calpestabile di 140 metri quadrati.
La cucina, abitabile, è separata dal soggiorno e offre tutti i comfort necessari per la preparazione dei pasti.
L’appartamento è composto da 5 locali, tra cui due camere da letto e due bagni.
Le camere da letto sono spaziose e ben illuminate, con ampie finestre che garantiscono una piacevole luminosità naturale.
I bagni sono entrambi finestrati e dotati di tutti i servizi essenziali, .Lo stato di conservazione dell’immobile è buono.
L’appartamento è dotato di riscaldamento autonomo, che garantisce il massimo comfort durante i mesi più freddi.
Una delle caratteristiche più interessanti di questo appartamento è la presenza di un balcone, ideale per godere di momenti di relax all’aperto e per godere di una splendida vista sulla città.
L’appartamento in vendita in zona Piazza Adda è un’ottima opportunità per chi desidera vivere in una zona tranquilla e ben servita,
Ideale per una famiglia o per chi cerca un’abitazione pronta alluso
——————————-
















