Via Cavour, Misterbianco, Catania
Vendita 65.000,00€ - Appartamento
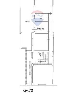
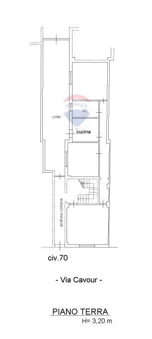
Classe energetica: G – A Misterbianco, Via cavour 70, in vendita appartamento al piano terra di 85mq più posto auto.
L’immobile è raggiungibile sia dal portone principale sia direttamente dalla corte dove sono presenti i posti auto senza attraversare il vano condominiale.
L’appartamento è composto da 3 camere tutte finestrate, bagno e cucina con uscita sul terrazzino.
La posizione strategica inoltre rappresenta un punto di forza di quest’immobile visto che nelle immediate vicinanze sono presenti numerose attività commerciali di beni di prima necessità raggiungibili facilmente a piedi.
——————————-









